便攜式立縫屋面板機設備

便攜式立縫屋面板機設備是一款完全可移動的立縫成型機,非常適合車間和現場操作。PLC控制系統位于設備一側,用于調整產品的定長和數量。
便攜式立縫屋面板機設備相比傳統的大型設備,它體積小巧,重量輕,框架上安裝了兩個腳輪,便于移動。對于這種便攜式機器,您可以將其用作生產線,也可以單獨使用。

便攜式立縫屋面板機設備當作為生產線工作時,工作速度達到每分鐘15-25米。如果您想要將它用作生產線,本公司也可以配備開卷機和接收臺。

便攜式立縫屋面板機設備可以加工320mm—700mm寬度范圍內的材料,通過旋轉手柄,兩對螺桿同步移動支架。使用復雜的復合材料輥阻止了對材料涂層的破壞。剪切部分,使用液壓動力切割,沒有毛刺,無變形,成品平整美觀。

便攜式立縫屋面板機設備采用先進的成型系統和新模具設計,可以實現瓦片的準確成型。不僅可以根據需求進行定制,而且成產速度快,大大提高了工作效率。

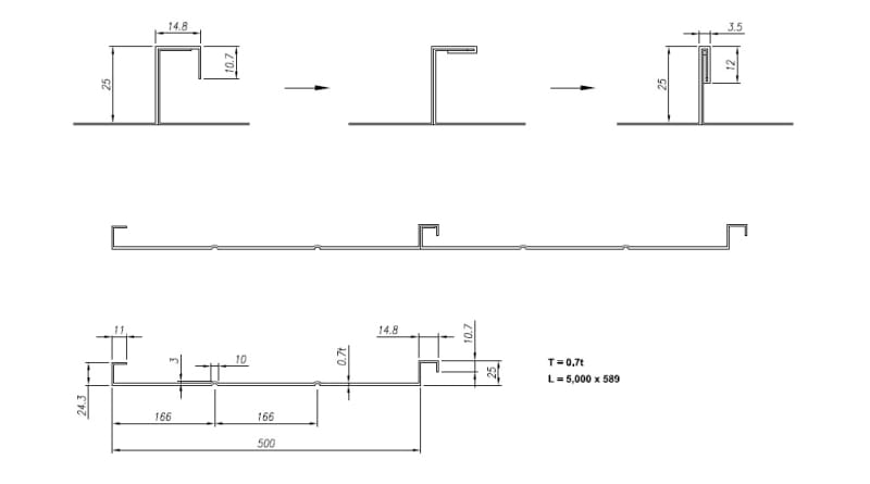
便攜式立縫屋面板機設備版型圖




便攜式立縫屋面板機設備使用場景


















微信17743636788